Aménagement de l'usine de torréfaction des cafés La Kinoise
Année: 2021
Type: industriel
Statut: achevé
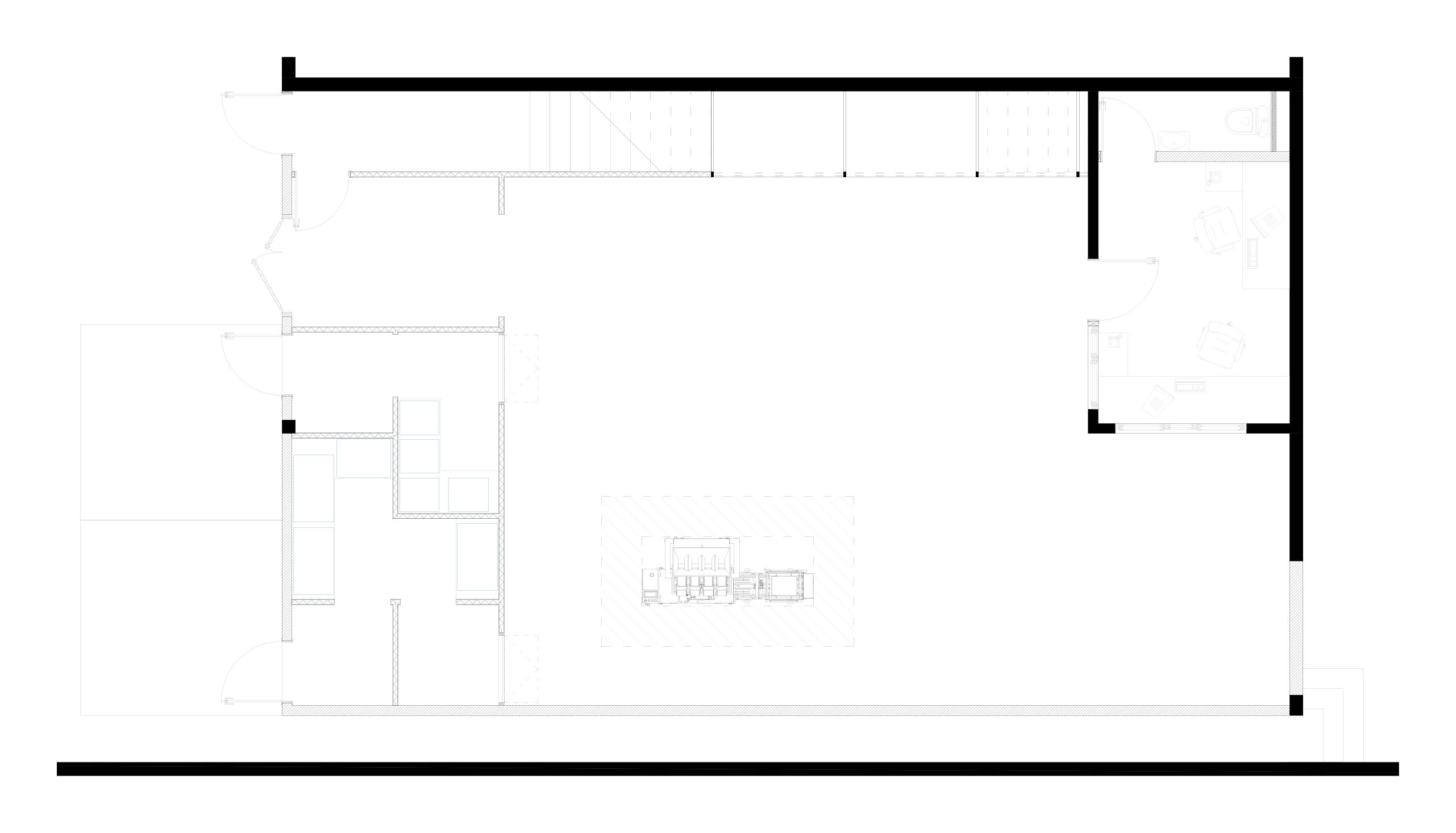
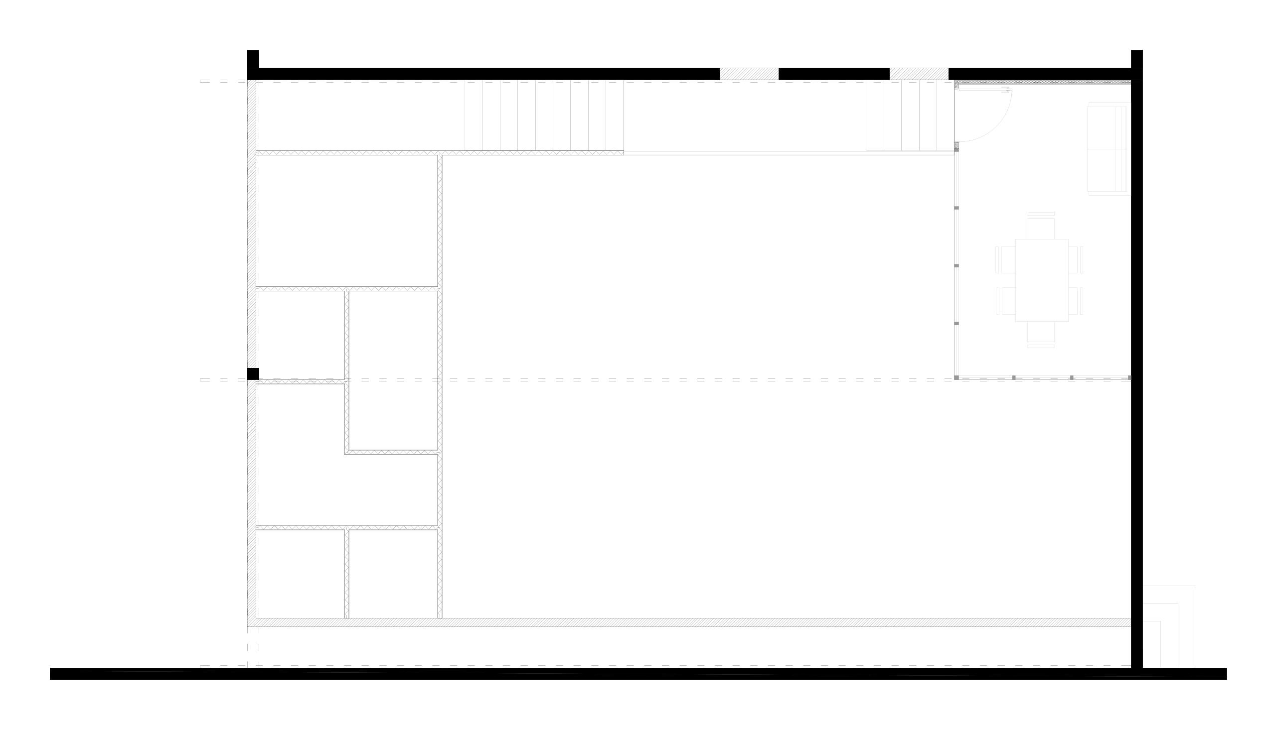
Située dans le quartier de Kingabwa, à Kinshasa, la nouvelle usine de torréfaction des cafés La Kinoise imposait plusieurs contraintes. Le projet y répond par une organisation logique basée sur le circuit du café, de son arrivée depuis la plantation jusqu’à sa plateforme de livraison ; chaque espace a sa fonction, de sorte que les différents circuits se croisent le moins possible.
Une passerelle est aménagée afin de donner aux visiteurs un accès à une salle de réunion surplombant l’usine. De plus, le projet insiste sur la réutilisation des éléments existants afin de tendre vers la plus grande économie.



